Areal : 55kvm Møne høyde ca. 5,5 m Innlagt vann og strøm Brøytet veg og god veg tilgang med seperat innkjørsel
Hytte og grunnarbeid ble gjennomført i perioden Mai til September, 2017.
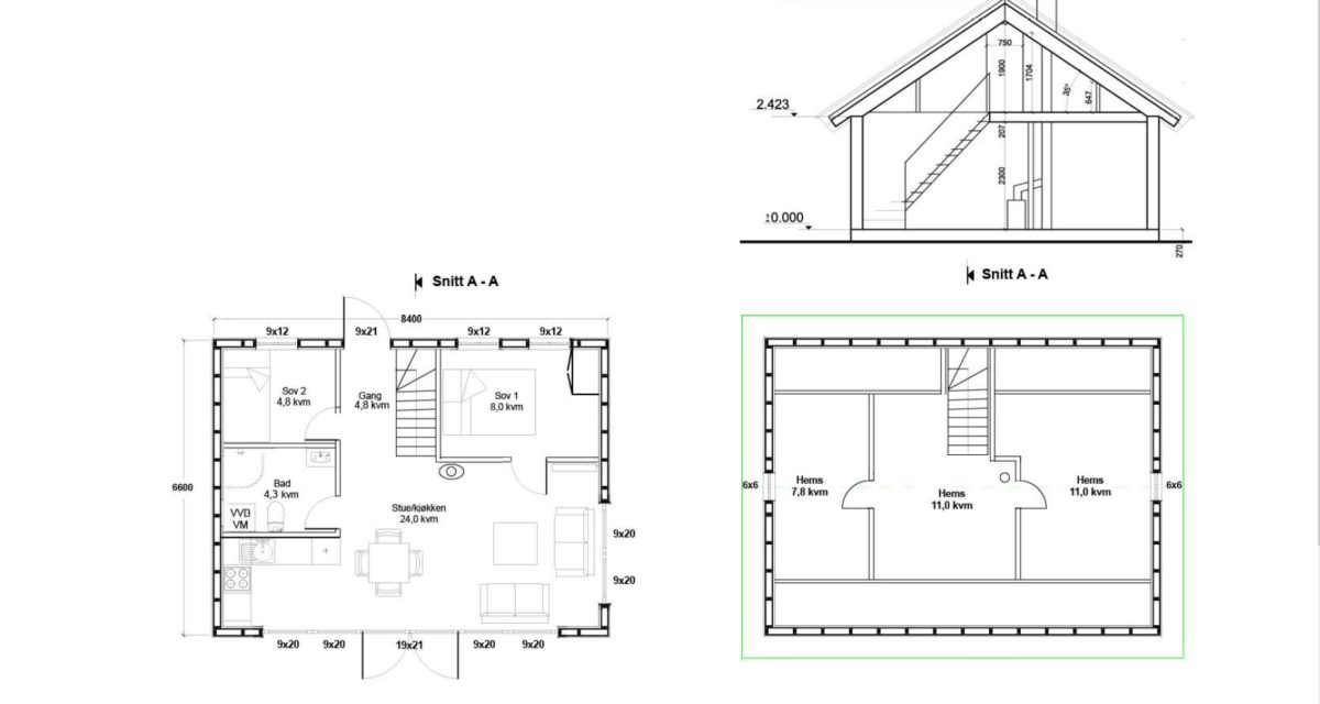
Dette er en enkel og fin hytte. Den er ikke for stor, men derimot god plass når det gjelder rominndeling og utnyttelse av arealet. Dette er en av våre billigere løsninger som fremdeles er en veldig standhaftig og fin hytte. Vegg elementer er egneproduserte mens A-takstolene kommer fra Mjøs Tre. hytten får fine og rette linjer med tette kasser, bunnstokk i bunn på vegg og i sammenkoblingen mellom over og underetasjen. Hytta får et litt kraftigere preg, siden vi bruker relativt grove hjørnekasser. noe som selvfølgelig er opp til alle og enhver.
Nedenfor er et interaktivt kart ! trykk og prøv.

- Gang
- Stue / kjøkken
- Bad
- Sov 1
- Hems
- Utvendig